20 Bank Plain Library

Norwich, Norfolk


Hudson Architects were invited to participate in a design competition to transform the Grade II listed former banking hall at 20 Bank Plain into a new creative learning environment for Norwich University of the Arts.

The brief called for ideas to reinvigorate and adapt the arrival and historic interior maintaining the legacy and memories of the bank while creating a welcoming and accessible public cafe and gallery space, sitting alongside collaborative learning spaces, the university library and archive.

Originally opened in 1929 as Barclays Banks, 20 Bank Plain has undergone multiple adaptions over the years. Most recently it was used a youth venue housing a live performance space, climbing wall, dance studio, café, media lab and nightclub.

Located within the Norwich City Centre Conservation Area, 20 Bank Plain occupies a prominent gateway position on one of the city’s main approaches, surrounded by some of Norwich’s most treasured historic buildings. As an important civic landmark, the building offers a unique opportunity to celebrate the city’s creativity and showcase the work of Norwich University of the Arts. Its central location also makes it a natural hub, with excellent connectivity to the university’s other buildings.

Our design approach was to transform the closed, protected nature of the bank, reconnecting the building to the city, opening spaces within, and exploring contemporary interventions to create a dynamic relationship between the old and the new.

A new intervention on London Street disrupts the rhythm of doors and windows, introducing a large picture window to showcase the creative arts and activity within.

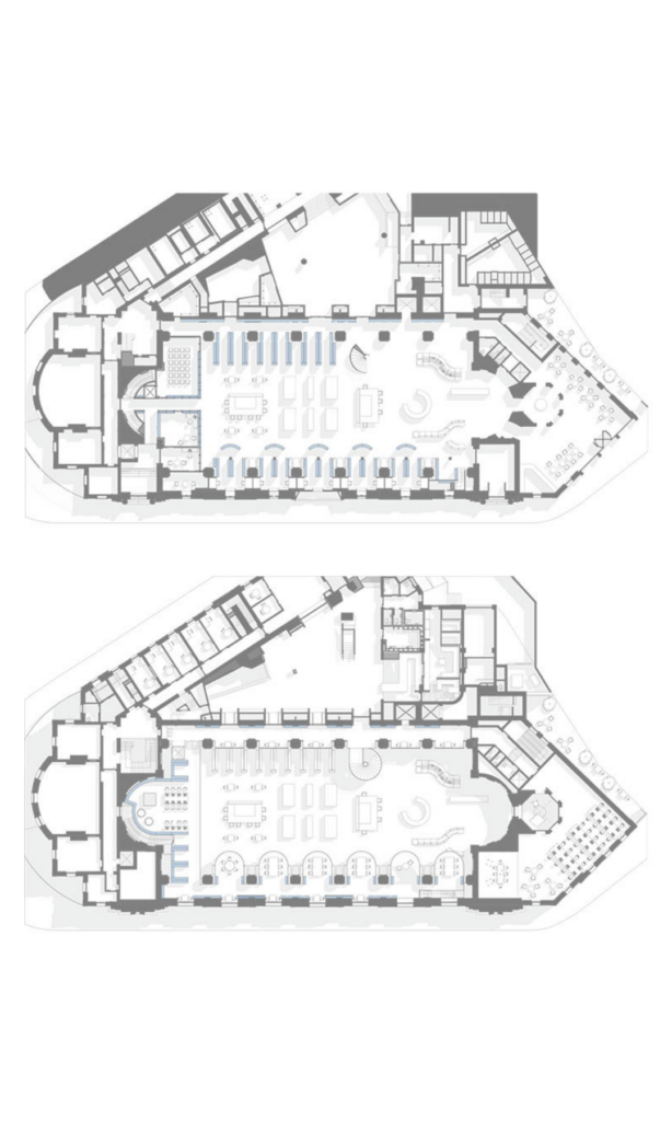
The entrance to the banking hall was realigned through the historic rotunda, creating a central axis connecting the new café, the exhibition spaces and the library. Within the main hall, two distinct proposals were developed: The Gallery and The Ribbon.

The Gallery preserves the volume and character of the banking hall, reimagining the tellers’ desks and offices as the library with spaces for collections, study and research. The central aisle becomes a curated gallery, with books, objects, materials, and digital collections on display while a suspended framework overhead showcases art installations.

The library inhabits the edges of the hall, with collections and study spaces carefully inserted as pieces of furniture within the historic fabric. A mix of enclosed, semi-enclosed and open spaces become offices, study and collection niches, with projecting balconies overlooking the gallery.

A sculptural spiral staircase connects the main hall to balcony level and encourages exploration of the upper spaces.

The Ribbon concept takes a contrasting approach, breaking down the volume of the banking hall into pockets of space for exhibition, study and learning. A walkway over becomes a ‘ribbon’ weaving through the space. Below the ribbon, bookshelves create a permeable spine, framing the pockets of space. The shelving defines thresholds between public and more private areas. The inhabited walkway connects the upper level and way with shelving creating enclosed study spaces for group and individual working.

Linking the balconies on either site of the hall, the ribbon becomes a dynamic ‘thread of knowledge’ connecting key spaces, experiences and moments of discovery within the building.

Let’s discuss how we can work together to bring your ideas to life.

Begin Now